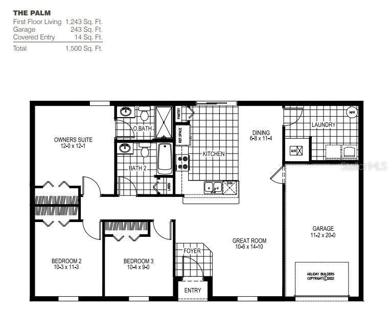
Description
Under Construction. Introducing the captivating Palm floorplan from our Inspire collection of homes. This modest yet charming residence offers three bedrooms, two full baths, an indoor laundry room, and a one-car garage. The contemporary kitchen design seamlessly overlooks the combined dining and great room area, creating a spacious and inviting atmosphere. Enjoy casual dining at the countertop breakfast bar while taking in the breathtaking view of the expansive backyard and the beautiful Florida weather through the sliding glass door. Designed with practicality and efficiency in mind, the Palm floorplan eliminates the need for traditional “formal” living and dining rooms, optimizing the use of space for family living and entertaining. Revel in the cozy and bright ambiance of this open layout, perfectly suited for creating cherished memories.
-
3BEDS
-
0.23ACRES
-
2BATHS
-
01/2 BATHS
-
1,243SQFT
-
$224$/SQFT
School Ratings & Info
Description
Under Construction. Introducing the captivating Palm floorplan from our Inspire collection of homes. This modest yet charming residence offers three bedrooms, two full baths, an indoor laundry room, and a one-car garage. The contemporary kitchen design seamlessly overlooks the combined dining and great room area, creating a spacious and inviting atmosphere. Enjoy casual dining at the countertop breakfast bar while taking in the breathtaking view of the expansive backyard and the beautiful Florida weather through the sliding glass door. Designed with practicality and efficiency in mind, the Palm floorplan eliminates the need for traditional “formal” living and dining rooms, optimizing the use of space for family living and entertaining. Revel in the cozy and bright ambiance of this open layout, perfectly suited for creating cherished memories.
© 2026 My Florida Regional MLS DBA Stellar MLS. All rights reserved. All listings displayed pursuant to IDX. All listing information is deemed reliable but not guaranteed and should be independently verified through personal inspection by appropriate professionals. Listings displayed on this website may be subject to prior sale or removal from sale; availability of any listing should always be independently verified. Listing information is provided for consumers personal, non-commercial use, solely to identify potential properties for potential purchase; all other use is strictly prohibited and may violate relevant federal and state law. Data last updated 2026-04-18T12:47:06.31.
